|
|
|
★センス良くデザインされたリノベーション物件(内装は細部までこだわり、住むだけで気分が上がる空間に仕上がっています)
[sro583]アーサー大橋南エクシオ204
福岡県福岡市南区弥永4丁目22-14
|
|
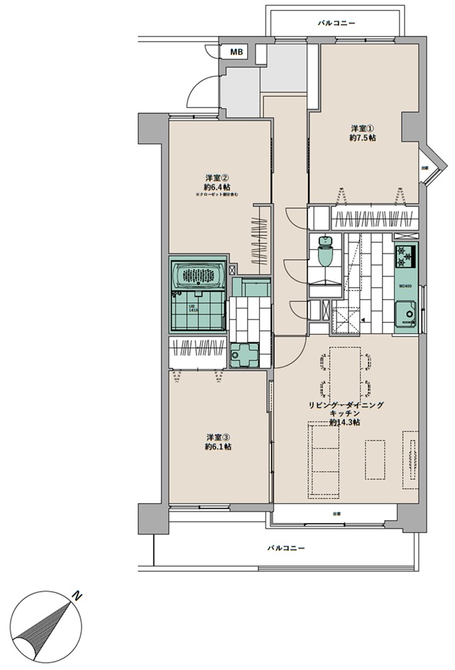
 間取り図
|
 リビングダイニング
|
 リビングダイニング
|
 キッチン
|
 浴室
|
 洗面化粧台
|
 トイレ
|
 洋室
|
 収納
|
 寝室
|
 寝室
|
 収納
|
 子供部屋
|
 子供部屋
|
 玄関
|
 玄関
|
 リビングダイニング
|
 その他設備
|
★開放感あふれる2面バルコニー(陽当たり・風通しともに良好。洗濯物も快適に乾きます)
★窓付きで明るいキッチン(料理中の匂いもこもりにくく、換気もスムーズ。毎日の家事が快適です)
★片付けやすさを考えた収納配置(使う場所に必要な収納を確保し、生活感を抑えたスッキリ空間を実現)
★広々とした開放感のある玄関スペース(帰宅時にホッとする、ゆとりある玄関。来客時の印象も◎)
|
間取 |
3LDK |
価格 |
2,490万円 |
|
間取詳細 |
LDK14.3畳/洋室7.5畳/洋室6.4畳/洋室6.1畳 |
管理費/修繕積立金 |
15,700円/16,330円 |
|
専有/バルコニー |
78.83u/12.87u |
販売区画 |
1/1 |
|
所在階/建物階 |
8階/2階建 |
建物構造 |
RC造 |
|
駐車場 |
1台 6,050円/台 |
建物:延べ面積 |
−:− |
|
交通手段 |
博多南線博多南駅徒歩約15分 |
築年月/完成予定 |
1991年12月 |
|
権利形態 |
所有権 |
国土法 |
|
|
引渡し日 |
即日 |
取引形態 |
専属専任 |
|
設備等
|
|
|
その他
|
その他費用:町内会費月額500円
|
|
情報登録日
|
2026年02月02日
|
次回更新予定
|
随時
|
|